|
|
Power Plant
Projects
| REFERENCE PROJECT |
|
Customer:
Helsingin Energia Oy, Helsinki, Finland
Project:
Turnkey Delivery of Auxiliary Boiler Plant for Vuosaari-B
Power Plant
Order:
FGD Plant 1995
Take-Over:
1997
|
 |
| |
Energico's Services:
-
main contractor functions
- engineering and coordination of deliveries
-
erection
- commissioning and trial run
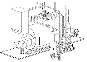
Energico's Scope of Supplies:
-
boiler with superheater
- burner and burner automatisation
- stack
-
feed water tank and feed pumps
- piping and instrumentation |
| |
| Main Data of the
Auxiliary Boiler Plant |
| Fuel: Natural
Gas or Light Fuel Oil |
| Manufacturer of the boiler Loos |
|
Parameters:
|
|
| - steam flow rate |
4 kg/s |
| - steam pressure |
38 bar |
| - steam temperature |
280 °C |
| - feed water temperature |
105 °C |
| - thermal output |
9 885 kW |
« Back |